Rollgittertor

Allgemein:
Das Gitterrolltor bietet Schutz vor Einbrüchen, insbesondere für Verkaufsstände in großen Einkaufszentren sowie für einzelne Geschäftseinrichtungen. Es ist für eine geringere Öffnungsfrequenz ausgelegt, d.h., es wird 2 bis 3 Mal täglich geöffnet und geschlossen.
Technische Daten:
Bei einem Außenbereichseinbau und Torhöhen bis zu 2500 mm ist eine Abdeckung für die Wickeltrommel verpflichtend. Eine solche Abdeckung ist für den Innenbereich nicht zwingend erforderlich.
Zusammensetzung:
Das Gitterrolltor besteht aus einer Netz- oder Lamellenhaut, seitlichen Führungsschienen, Konsolenträgern und einer Wickeltrommel.
Materialien:
Die Lamellenhaut kann aus verzinktem Blech oder Aluminium bestehen.
Alle anderen Torelemente, wie die Führungsschienen und Konsolenträger, sind aus verzinktem Stahl gefertigt.
Motorantrieb:
Der Motorantrieb ist elektrisch und sorgt für das Öffnen des Gitterrolltors.
Für kleinere Torgrößen wird ein zentraler Motorantrieb verwendet.
Bei größeren Toren kommen seitlich liegende Motoren mit Getriebereduktoren zum Einsatz.
Öffnungsgeschwindigkeit:
Die Öffnungsgeschwindigkeit liegt bei 10 bis 15 cm/s.
Sicherheit:
Der Elektroantrieb wird durch einen Schlüsselschalter aktiviert, der während des Torbetriebs eingeschaltet bleiben muss, um die Sicherheit während der Toraktivität zu gewährleisten.
Einbaumöglichkeiten:
Das Gitterrolltor kann sowohl an der Öffnung als auch in der Öffnung montiert werden.
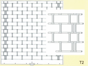
Ausführungen der Torblätter
Netzgitter aus geraden Rohrprofilen



Netzgitter aus gebogenen Rohrprofilen



Netzgitter mit besonderer Profilausführung – Elegance.



Netzgitter aus einzelnen vollen Lamellen, erhältlich in den Höhen 73 cm, 97 cm und 115 cm


Netzgitter aus perforierten Lamellen in den Höhen 73 cm, 97 cm oder 115 cm

